Interstate Frontage Commercial Building and Land For Sale

4425 E. Colorado Boulevard, Spearfish, South Dakota, 57783

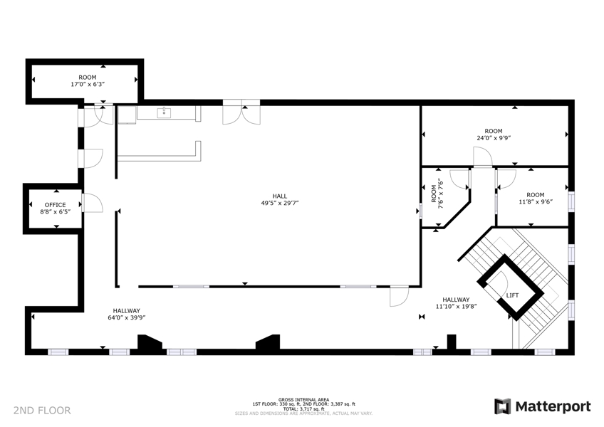
Photos

* Expired

$3,500,000

MLS: 26015-77890

4.5 Acres

10,800 SqFt

What You Should Know

  • I-90 Interstate Frontage

  • Development Land For Sale

  • Commercial Building For Sale

  • Contractors Garage for Sale

  • Spearfish South Dakota

  • Income Property for Sale

Why You'll Love It

Spearfish Commercial Building with Land for Sale

Completed in 2009, the commercial building is located on Colorado Boulevard, which serves as the southern frontage road for the rapidly growing I-90 corridor. The building totals 10,800 square feet with 7,200 square feet on the first floor composed of 3,600 square feet of retail and office space with the remaining 3,600 square feet for warehouse and material handling. The second floor is accessible by elevator or staircase and consists of 3,600 square feet which has multiple office spaces, breakout rooms, kitchenette, ADA bathrooms, and large conference/reception room. The building was built with tremendous attention to detail and is completely ADA compliant. The second floor is currently under lease to a local church.

Building Potential and Future Development

The property in its entirety is 4.5 acres, zoned highway service commercial with inclusion of all C1 primary uses. There are approximately 3.5 acres remaining for future development with unobscured south facing views of the beautiful Black Hills. The property currently hosts 40 parking spaces. The Sky Ridge housing development and sports complex is only two miles east of the subject property with the first phase of construction including 140 homes with additional phases to follow. The construction of the 124 unit Peaceful Pines senior living community will add to the continued growth between exit 17 and exit 14. Sellers would be inteterested in a leaseback.

Spearfish, a Rapidly Growing Community.

Spearfish is one of the fastest growing communities in South Dakota and considered by many the premier community in the Black Hills region. The majority of the new construction is occuring east of Spearfish between exits 14 and 17, which is directly where this property lies. Location is tremendous as current average daily traffic on Colorado Boulevard is 2,895 and eastbound I-90 traffic is just under 8,000 cars a day, both of which are poised to increase significantly with area's projected growth. 

 

 

 

Where You'll Find It

  • Street Address: 4425 E. Colorado Boulevard
  • City: Spearfish
  • State: South Dakota
  • County: Lawrence

Panoramic View

Donald Hlava

Agent/Auctioneer NE & SD